921 Ridge St
Easton, PA 18042

Scroll to Content

Images

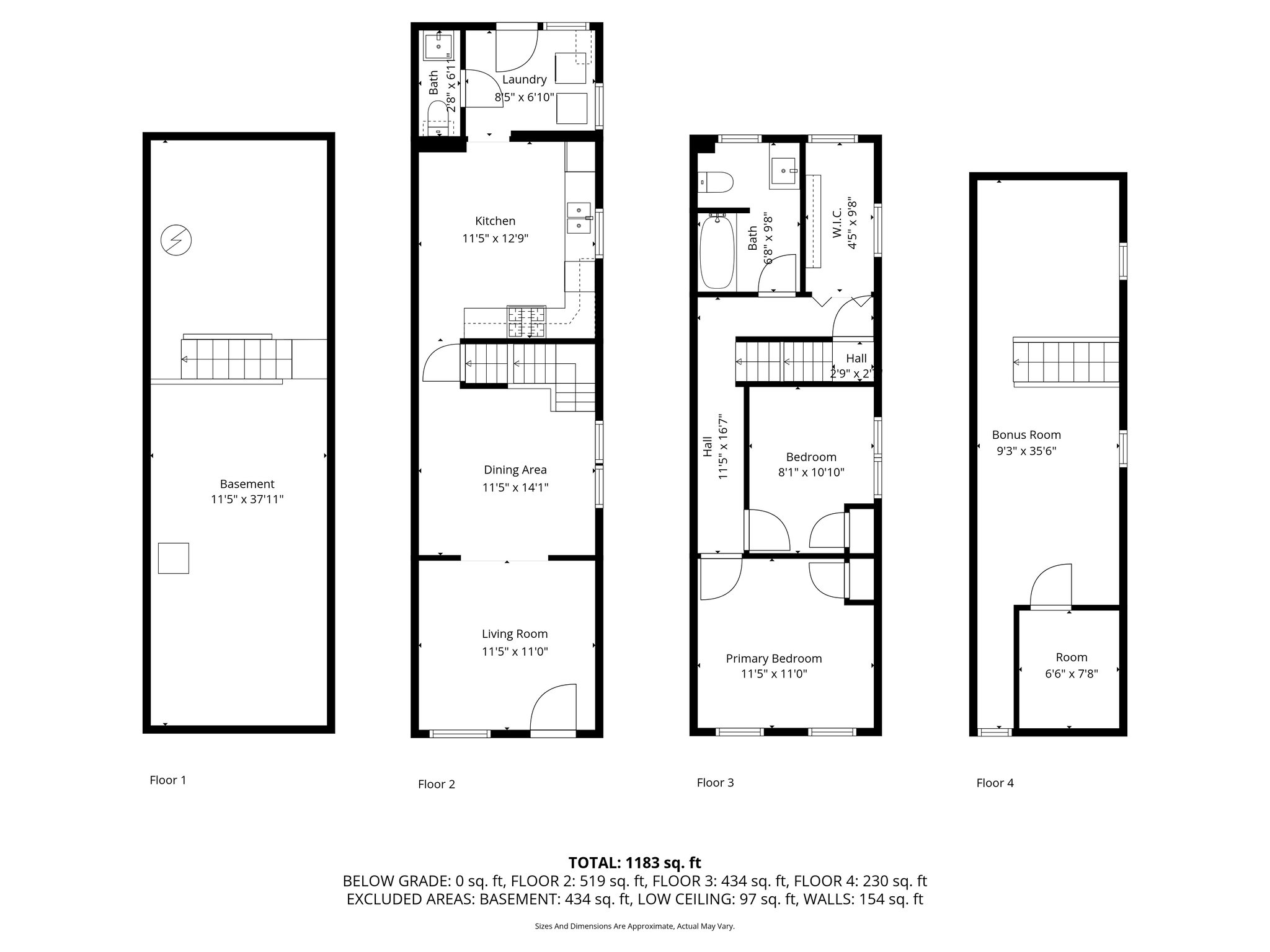
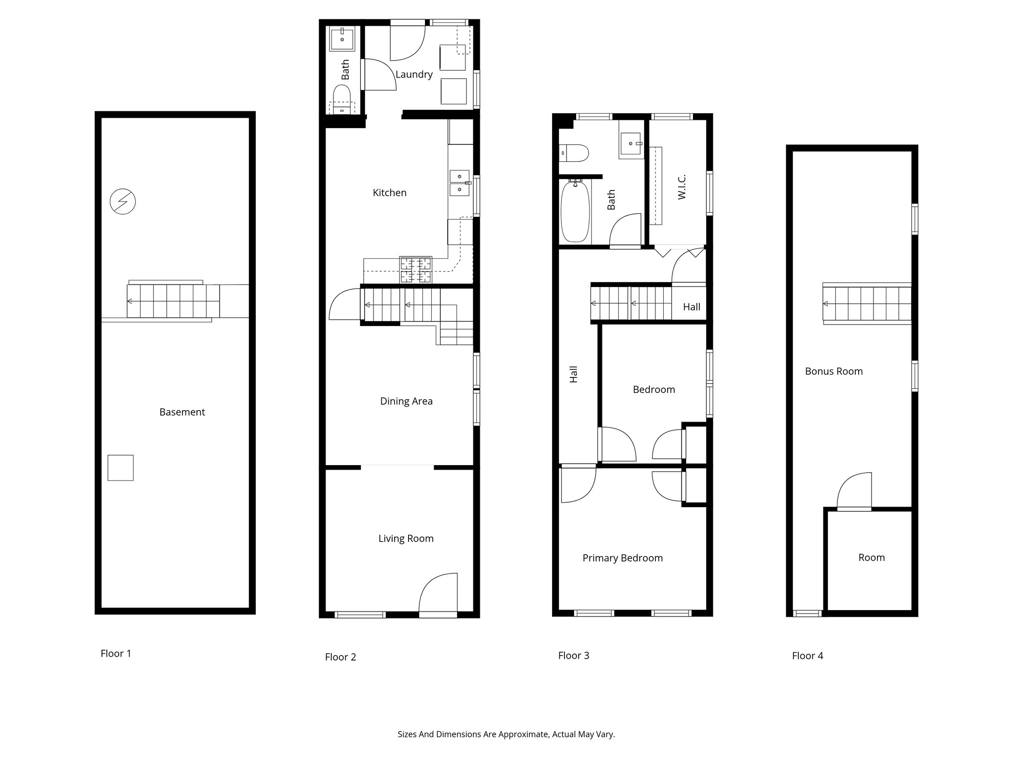
Floor Plans

Contact

Feel free to contact us for more details!

Georgiana Torrella

Iron Valley RE of Lehigh Valley

6104179722

torrellarealestate@gmail.com